Home
Projecten
Contact
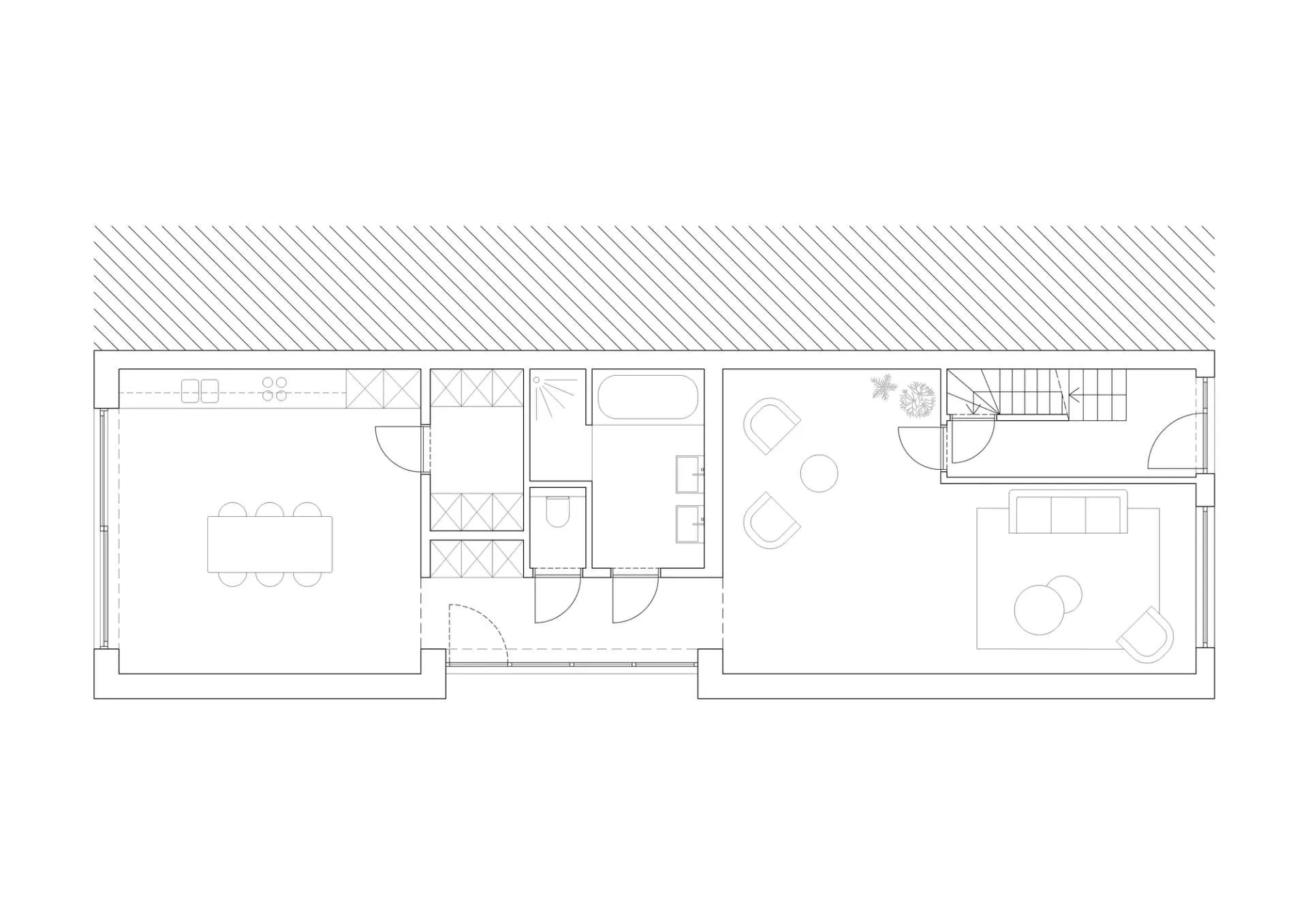
Broechemlei
Verbouwing van een halfopen woning
●
Ranst
●
opgeleverd
●
2016-2018