Home
Projecten
Contact
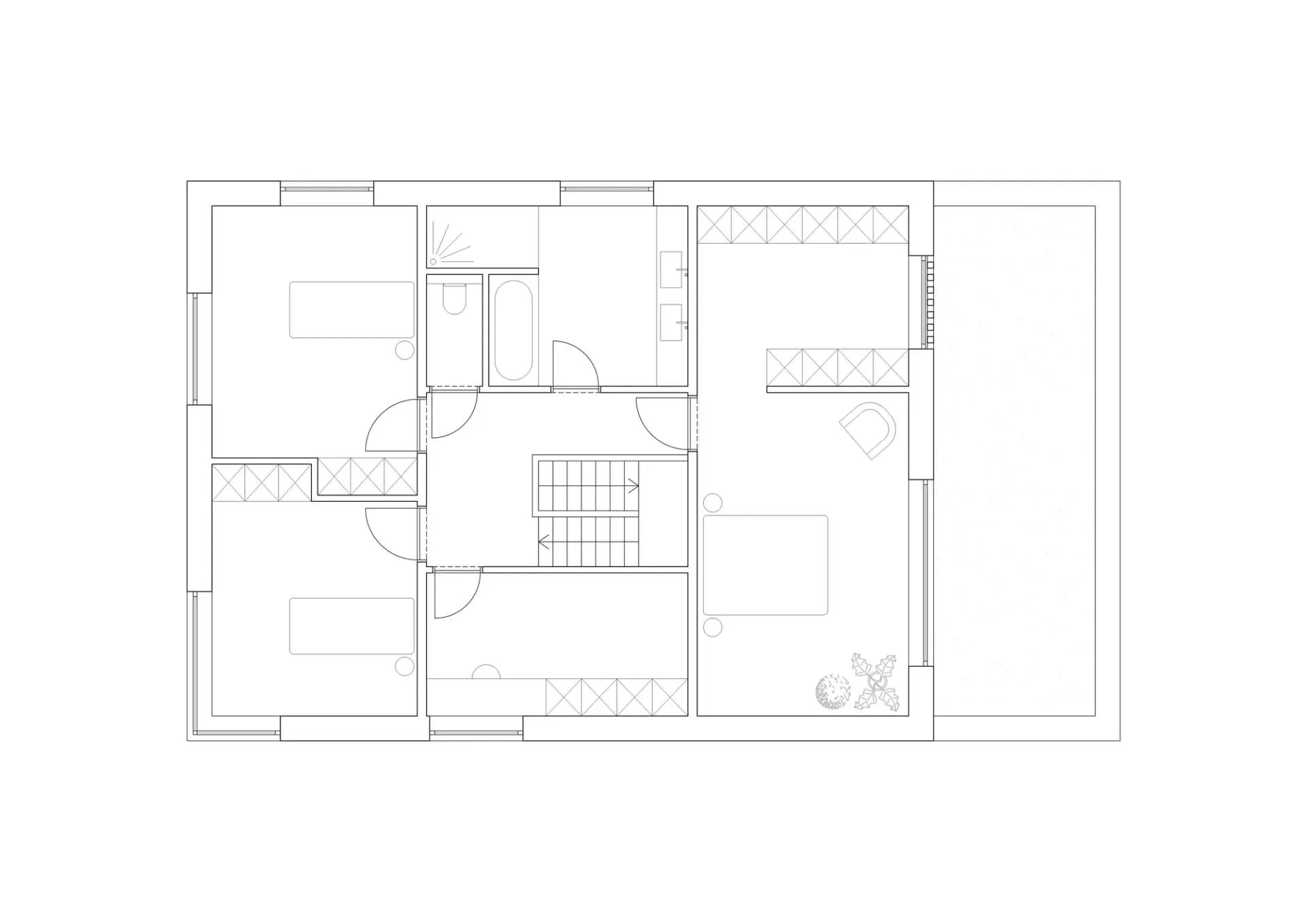
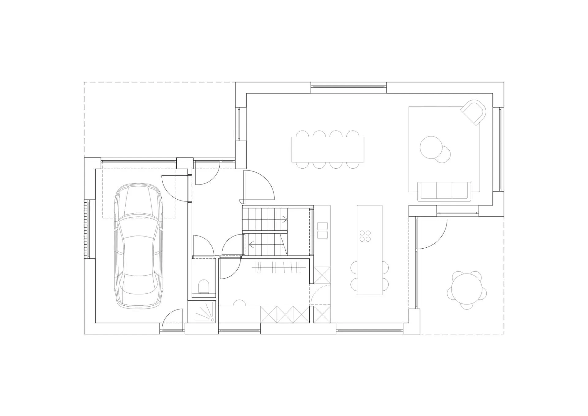
Notenstraat
nieuwbouw van een vrijstaande woning
●
Oelegem
●
Opgeleverd
●
2016 - 2018