Home
Projecten
Contact
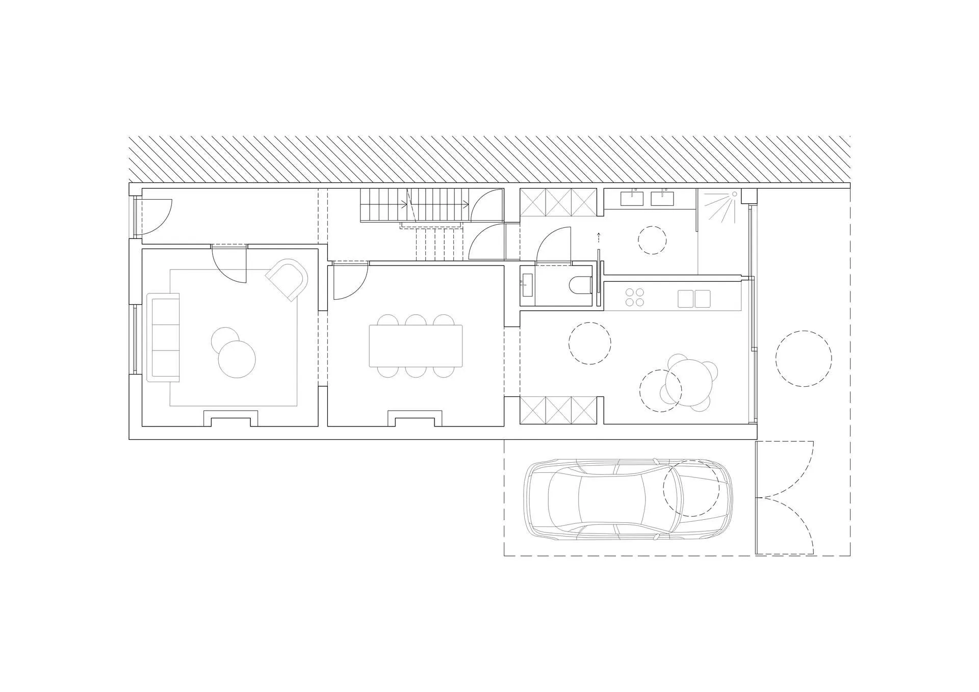
Oudstrijderstraat
Verbouwing van een halfopen woning
●
Oelegem
●
opgeleverd
●
2014-2017