Home
Projecten
Contact
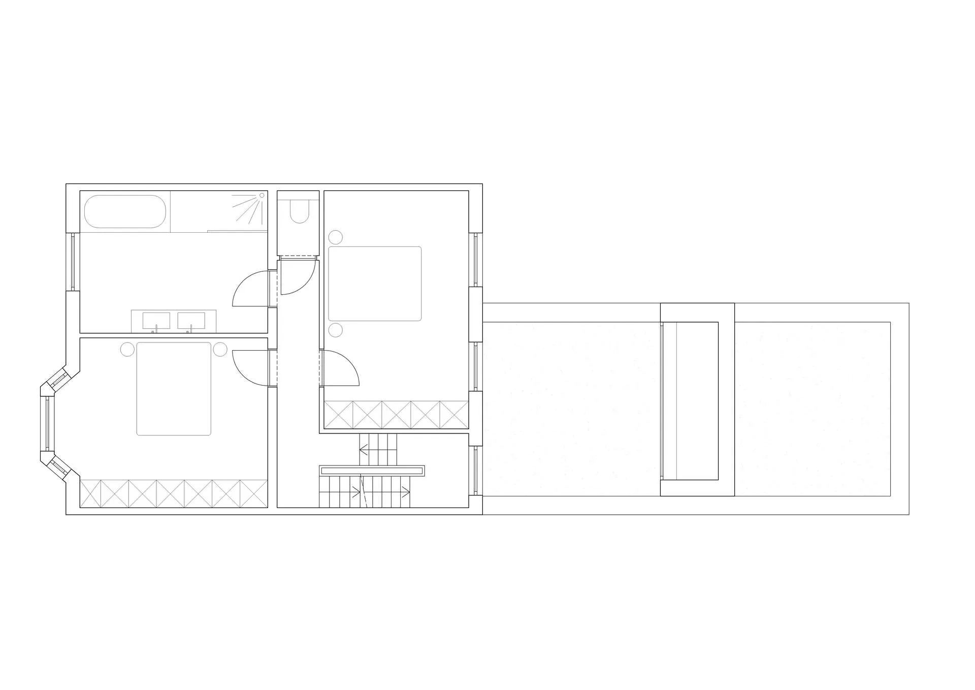
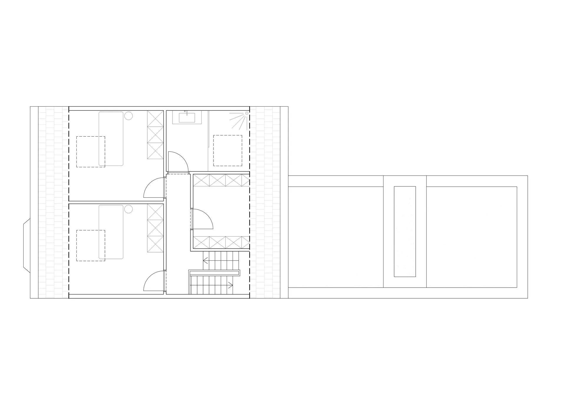
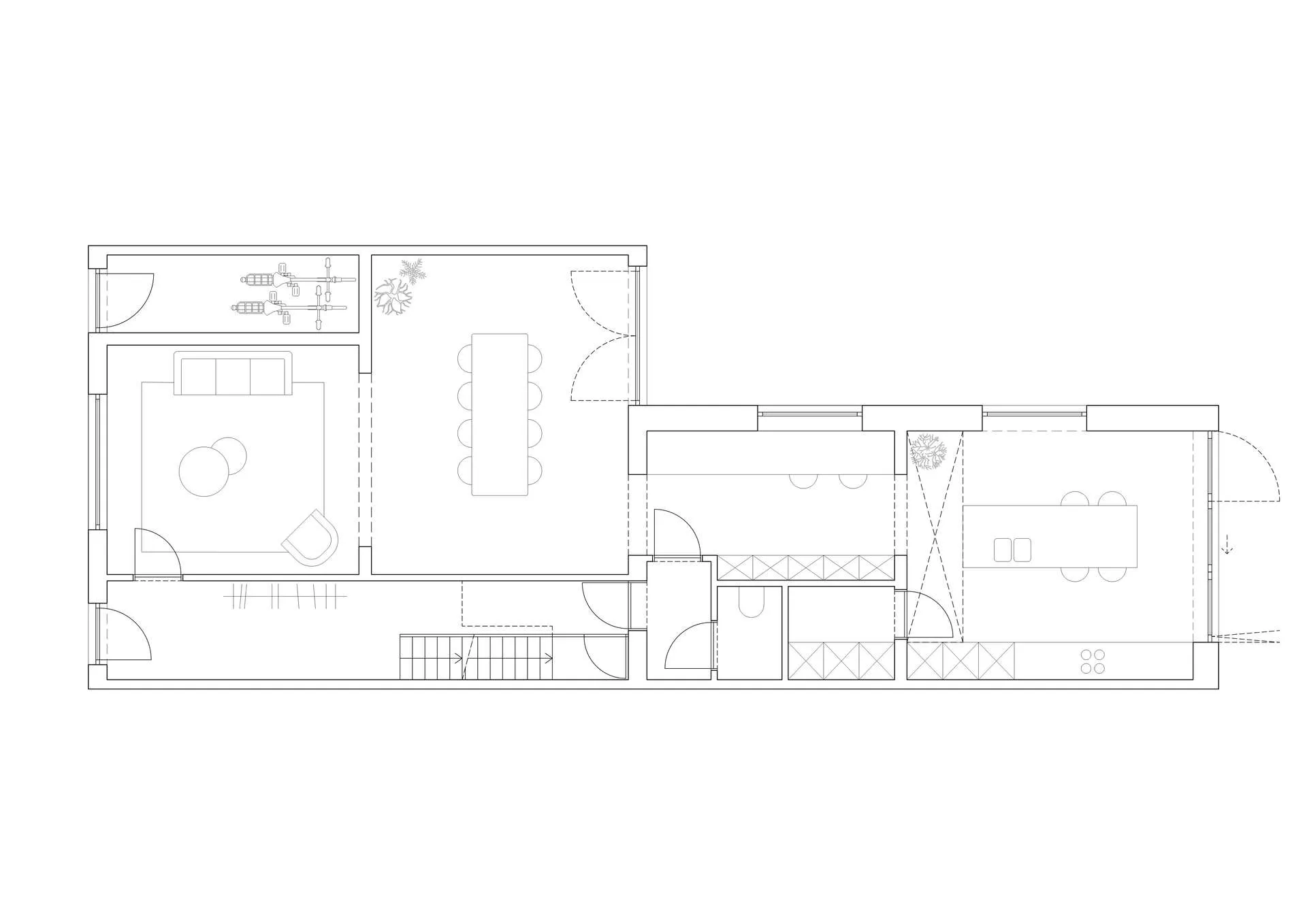
Oudstrijdersstraat
Verbouwing van een rijwoning
●
Oelegem
●
opgeleverd
●
2015-2018